
VENICE MEETS BOSTON
CRAFTING A VENETIAN BACARO IN BOSTON'S SOUTH END
Location
Boston, MA
Completion Date
2016
Size
5,500 SF | 250 seats
Client
The CODA Group
Team
Eric Robinson
Kevin Deabler
Jessica Haley
Mike DelleFave
Collaborator
Blue Barn Builds
Awards
Description
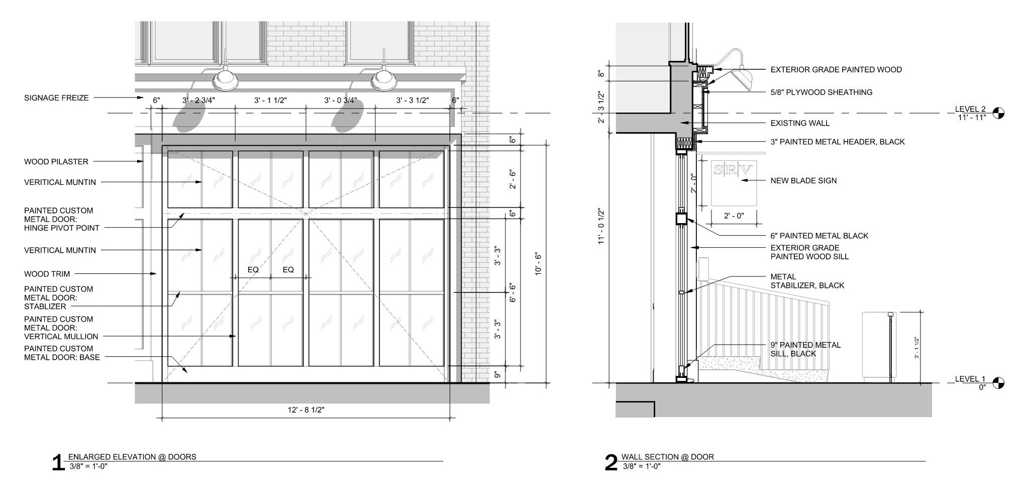
RODE set out to design a 250-seat restaurant that felt approachable and comfortable, typical of a traditional Bacaro in Venice. SRV features many custom elements such as brushed brass shelving, cut-glass decanter chandeliers, wine displays in the private dining room, velvet banquettes and a massive white marble bar with an integrated ‘cicchetti’ station. RODE also worked on pushing the boundaries with a fully operable steel and glass façade that opens vertically to allow for unobstructed openness from sidewalk to interior.

Bacaro-inspired details come together with a focus on openness to seamlessly blend Boston's South End with Venice.




















